Typový dom RM 91ch
Základné údaje
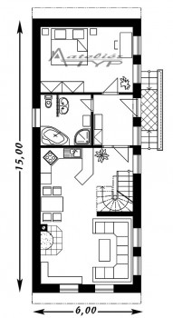
RM CH 91 je samostatne stojaci rodinný dom s obytným podkrovím. Umožňuje komfortné bývanie pre 4 až 7-člennú rodinu. Delí sa na dennú a nočnú časť s možnosťou vyhotoviť jednu spálňu alebo pracovňu na prízemí, príp. kotolňu na pevné palivo (drevo - splyňujúci kotol atď.) tam, kde nie je možná plynofikácia. Na prízemí sa nachádzajú: zádverie, obývacia izba s kuchyňou a jedáleňou, WC s kúpeľňou a pracovňa, resp. spálňa, v alternatíve kotolňa. V podkroví sú dve izby, kúpeľňa s WC, chodba a dva balkóny. Ide o klasickú murovanú stavbu s dreveným obkladom s montovaným stropom a možnosťou výberu materiálov. Krov je hambálkový s tvrdou krytinou s možnosťou výberu. Rodinný dom možno podpivničiť a vyhotoviť v zrkadlovom obraze. Dom je možné využiť aj ako chatu či víkendový domček.
