Typový dom RM 156.v2
Základné údaje:
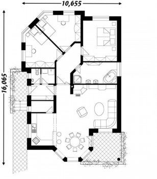
Rodinný dom RM 156 je samostatne stojaci jednopodlažný dom s možnosťou podpivničenia a prístavby garáže. Je určený pre 4- až 6-člennú rodinu. K jeho širšiemu prepojeniu s exteriérom prispieva terasa. Projekt rodinného domu možno dodať aj v zrkadlovom obraze. Malá šírka ho predurčuje na užšie pozemky v uličnej zástavbe. Ide o klasickú murovanú stavbu so širokým výberom materiálov a krytín, s možnosťou rôznych montovaných stropov. Rodinný dom vyhovuje podmienkam na udelenie pôžičky ŠFRB.
